
Where family memories are made in Milldale
Discover this entertainer’s dream home at Lot 1151, Milldale. Tucked away down a private JOAL with additional visitor parking, this home offers easy access to nearby walking and cycling paths. Enjoy the convenience of Ahutoetoe School, the upcoming Milldale Town Centre, and the Parkland Loop greenspace just minutes from your door.
Whether you're a busy professional, investor, or have a growing family, this property is the ideal place to call home. Get in touch with the Signature Homes team today to make it yours.
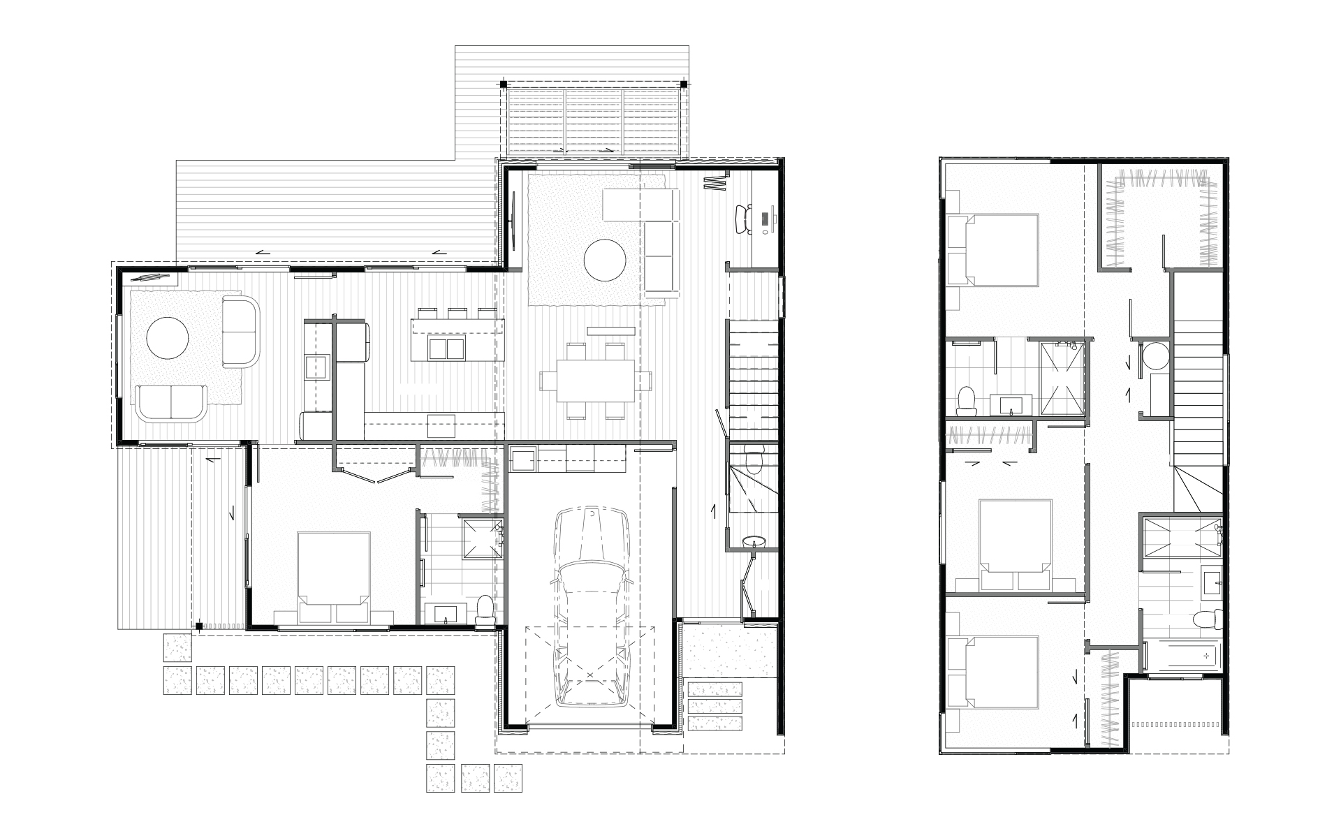
Inside, you'll discover four generous bedrooms, each designed for privacy and comfort. The master suite includes an ensuite, walk-in wardrobe, and direct access to the outdoor patio. Perfect for entertaining, the centrally located kitchen - complete with a butler’s pantry - anchors the main living area. Expansive sliding doors in both the separate living and family rooms capture all-day sun, filling the home with natural light and warmth.
Feature included:
- Four double bedrooms
- Open-plan kitchen, living & dining area
- Custom-designed kitchen & scullery
- Fisher & Paykel appliances
- Heat Pump in the living room area
- Separate family room
- Large, expansive outdoor living area
- Double-car garage
- Driveway included
- Market-leading Guarantees including 2 years maintenance cover & 100% fixed price
Excludes Watercare IGC, hard, and soft landscaping

Location & Nearby Showhomes
Dynamic Map Style Guide (Don't Delete)
CMS List Item
Filter Reset / Empty State
Pop-Up
Tooltip (Don't Delete)

Filter Address Search
Filter Chip
Map Location Pin
Perfect Milldale Home for Outdoor Entertaining!
Video tour
Walk Through
FAQs
Our House & Land packages make building easy by bringing together the right section and home design - so you can skip the stress and get straight to the fun part.
Our House & Land packages include everything you need to move in, from the home itself to the driveway, fixtures, and fittings.
Sometimes, to give you more flexibility, we leave a few things – like landscaping, decking, or window furnishings – up to you. If that’s the case, they’ll be clearly listed in the property details.
So you’ll always know what’s included, with no surprises.
When you sign your Building Agreement with us, the total cost to build your home is locked in.
No hidden extras. No unexpected costs. Just peace of mind.
Learn more about NZ's Best Building Guarantees here.
Signature Homes offers New Zealand’s best building guarantees — designed to protect you at every stage of your build.
Discover all our guarantees here.
Most banks ask for:
• 10% for owner-occupier builds (or sometimes 5% if you're a first home buyer)
• 20% for investment builds
First home buyers may also get bank cash contributions to help with costs.
Using KiwiSaver?
If you’ve been contributing for 3+ years, you might be able to use it toward your deposit. Chat with your KiwiSaver adviser to make sure you’re in the right fund and ready to go.
A construction loan is paid out in stages as your home is built – these are called progress payments. You’ll usually only pay the interest during the build, which helps with cash flow.
Some lenders offer special construction rates, so choosing the right one can save you money.
Learn more about construction finance.
We work with expert new build finance advisors across our regions who understand the Signature Homes process inside and out. With access to all major lenders, they’ll help match you with the right finance solution to suit your needs.
Learn more about new build finance.
On average, the full process takes 10–12 months, including planning, consent, and construction.
The physical build usually takes 6–10 months, depending on your home design and weather conditions.



















